Casa Cottage
Soluzioni unifamiliari
Casa Cottage è stata progettata con l'idea di realizzare un ambiente funzionale per chi ricerca estetica e comfort.

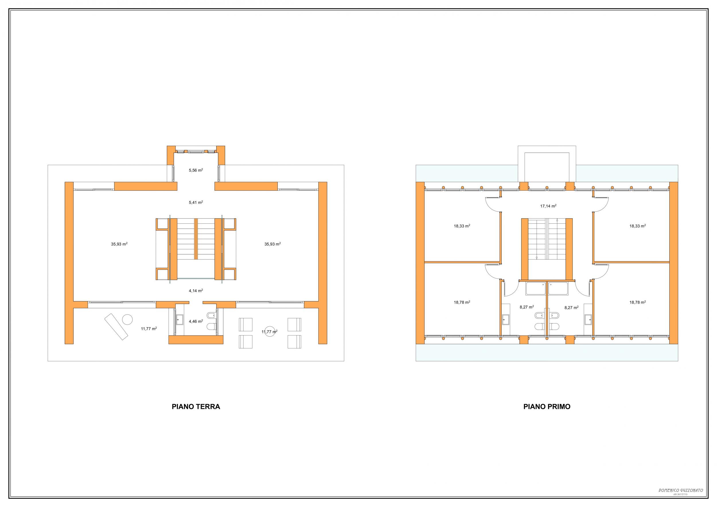
Studio di casa unifamiliare in legno strutturale con pannelli di finitura interni ed esterni in legno naturale, il progetto gioca su una simmetria centrale sia in pianta che in alzato. Difatti, si è pensato di partire da un volume puro e semplice, a due falde, a cui imporre una sottrazione di elementi per generare il ritmo di pieni e vuoti. Questo ritmo viene a sua volta messo in pausa da due testate contrapposte materiche di tutto pieno e variazione di materiale con finitura in pietra a spacco.

Alle ampie vetrate e portici del piano terra si contrappongono le finestrature continue al piano primo, ritmate da colonnine lignee, in modo tale da permettere alla luce naturale di illuminare gli spazi interni e creare un collegamento visivo continuo con l'esterno.